







Способы оплаты: наличные, банковская карта, ЕРИП
По Беларуси: 1-3 дня
Самовывоз: г.Минск, 1-й Твёрдый переулок, 7 (Пн-Пт 10-18)
Система инсталляции для унитаза TECEconstruct 9300040
Система инсталляции TECEconstruct 9300040 — это плоское и компактное решение, идеально подходящее для установки в угол. Эта модель обеспечивает надежную поддержку подвесного унитаза и отличается современным дизайном, что делает ее отличным выбором для любого санузла.
Основные характеристики:
Застенный модуль:
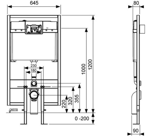
- Высота: 1200 мм
- Глубина: 80 мм
- Ширина: 640 мм
Фронтальное расположение панели смыва для удобного доступа и эстетичного внешнего вида.
Рама с порошковым покрытием поверхности обеспечивает долговечность и защиту от коррозии.
Сливной бачок Octa:
- Толщина: 8 см
- Изготовлен из ударопрочного пластика с фронтальным приводом.
- Объем бачка составляет 9,5 л, с возможностью настройки объема большого слива (6 л) и малого слива.
- Доступ к содержимому бачка осуществляется через отверстие для панели смыва.
- Соединение для сливного бачка с внутренней резьбой 1/2".
Дополнительные функции:
- Изоляция для предотвращения образования конденсата.
- Тихий смыв благодаря бесшумному гидравлическому заливному клапану.
Комплектация:
- Несущая монтажная рама.
- Комплект крепежных элементов для установки инсталляции.
- Смывной бачок Octa.
- Комплект крепежных элементов для установки унитаза.
- Комплект патрубков с резиновыми манжетами для подсоединения унитаза.
- Фановый отвод диаметром ∅ 90/100 мм.
- Комплект защитных заглушек для патрубков.
- Шаблон для отделки отверстия под кнопку смыва.
- Инструкция по установке инсталляции и кнопки смыва.
Система инсталляции TECEconstruct 9300040 — это надежное и функциональное решение, которое легко устанавливается и подходит для различных интерьеров.
*Шумоизоляция и панель смыва приобретается дополнительно!
Заказ данной системы доступен с оперативной доставкой в Минске по территории Республики Беларусь через интернет-магазин Poloskun.by — официальный дилер бренда TECE в стране. Все изделия сопровождаются сертификатами качества от производителя и распространяются с фирменной гарантией завода-изготовителя; возможны как гарантийный ремонт, так и обслуживание после окончания гарантийных сроков в специализированных сервисах компании-производителя.
Кроме того, команда экспертов магазина предоставляет профессиональную помощь при подборе сантехники благодаря прохождению обязательных тренингов от представителей бренда TECE, дополненных экскурсиями на производство марки, что обеспечивает высокий уровень знаний о продуктах среди специалистов компании Poloskun.by.
Размер и габариты
Основные параметры инсталляции
Нет отзывов об этом товаре.
Пока нет вопросов об этом товаре. Станьте первым!
Информация о товаре предоставлена для ознакомления и не является публичной офертой. Производители оставляют за собой право изменять внешний вид, характеристики и комплектацию товара, предварительно не уведомляя продавцов и потребителей. Просим вас отнестись с пониманием к данному факту и заранее приносим извинения за возможные неточности в описании и фотографиях товара. В связи с постоянным изменением остатков на складе, наличие товара уточняйте у сотрудников магазина.